Продажа дома
Воронежская область, Девицкое сельское поселение, Дружбы, 14
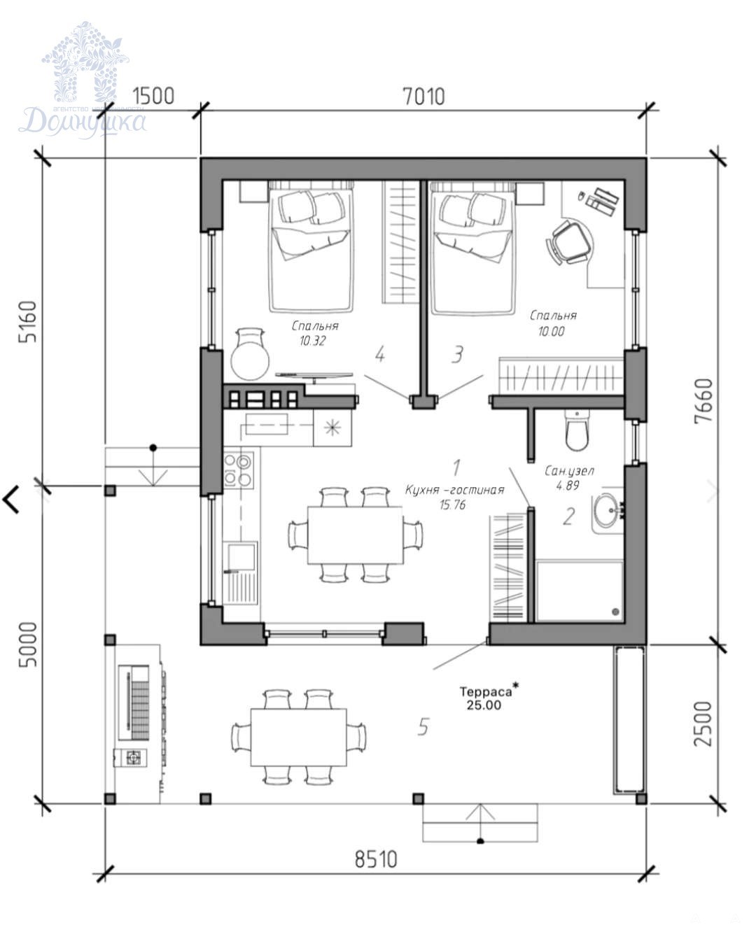
- 56 м²
- Площадь
- 21.00 м²
- Жилая площадь
- 16.00 м²
- Площадь кухни
- 1
- Этажность
- 10 сот
- Площадь участка
5 000 000 ₽
89 286 ₽ за м²
ID объявления 12713050
Поделиться
Добавить в избранное
Хотите построить дом с двумя спальнями и большой кухней-гостиной в отделке White Box?!
Тогда это предложение для Вас.
Построим дом всего за 3 месяца
Таких цен нет даже за двухкомнатные квартиры!
Возможны любые формы оплаты, в том числе и семейная ипотека.
Комфортное проживание в дали от городской суеты в окружении с одной стороны леса, а с другой озера.
Дом это не квартира - дом это свобода.
Успей сделать лучшую покупку в своей жизни!
Можем построить такой же дом на вашем участке
Дата обновления: 18 апреля 2026