100 м²
Площадь
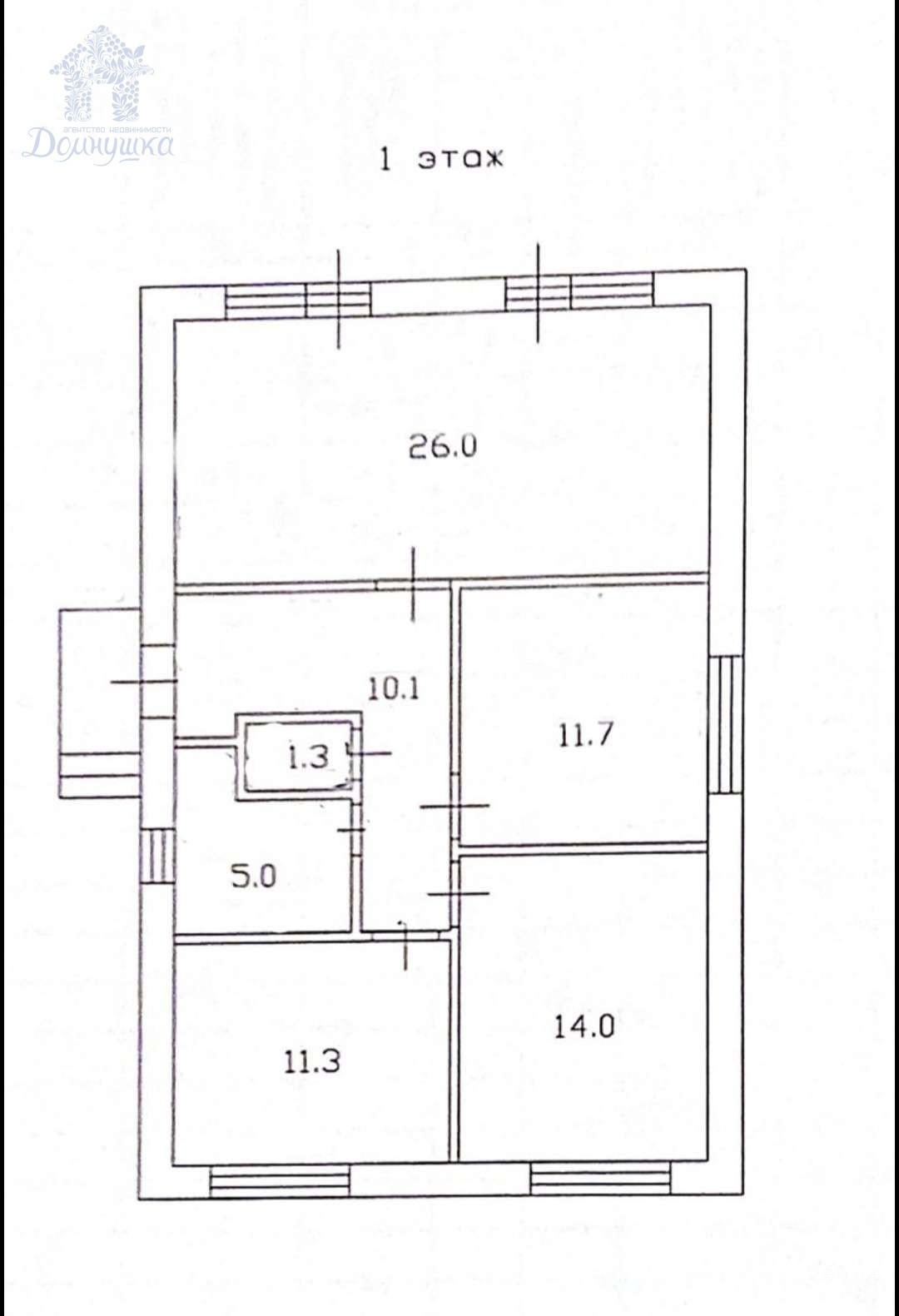
37.00 м²
Жилая площадь
26.00 м²
Площадь кухни
1
Этажность
8 сот
Площадь участка

5 999 000 ₽

59 990 ₽ за м²

ID объявления 12599154

Поделиться

Добавить в избранное

Продажа от застройщика, возможна любая ипотека!

Предлагаем к продаже готовый дом с отделкой White Bох, находящийся в 15 минутах от города Воронеж.


Стены отштукатурены и отшпаклеваны под обои, полусухая стяжка пола, теплые полы + радиаторы, установлен двухконтурный котел, высота потолков 2.9м.

Фундамент свайно - ростверковый

Стены - газоблок 250, утеплитель пеноизол 5см, дом облицован керамическим кирпичом.

Крыша - металлочерепица.

К дому подведены и подключены все необходимые коммуникации: свет, газ, вода (скважина), канализация.

Инфраструктура района развитая. Рядом магазин, школа и детский садик.


Гарантия дома от застройщика!

Цена актуальна на момент выхода рекламы.

ОДОБРЕНИЕ ИПОТЕКИ И СОПРОВОЖДЕНИЕ СДЕЛКИ БЕСПЛАТНО!!!











Дата обновления: 14 марта 2026

Дом/Коттедж/Таунхаус/Дуплекс Ипотека От застройщика