Продажа дома

Воронежская область, Новая Усмань село, Ленинградский переулок, 22

107 м²
Площадь
45.30 м²
Жилая площадь
30.00 м²
Площадь кухни
1
Этажность
8 сот
Площадь участка

9 500 000 ₽

88 786 ₽ за м²

ID объявления 12473680

Поделиться

Добавить в избранное

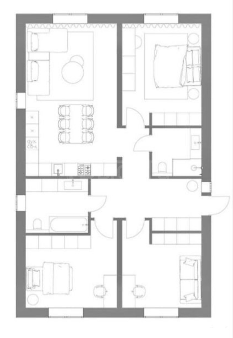
В продаже дом 107, 2 м2 полезной площади (не путать с площадью застройки)




Дом готов и ждёт своих хозяев.

Все коммуникации заведены, газ пущен, вода в доме, электричество заведено.




Дом имеет 3 спальные комнаты (13, 1/15, 1/17, 1 м2) + кухня-гостиная 30, 3 м2.

Два раздельных сан.узла.




Сам дом стоит на сплошном фундаменте, стены 300 мм пеноблок + утеплитель пенопласт + керамический кирпич, мягкая кровля и 200 мм утеплитель чердака.




Данный дом можно приобрести как в СЕМЕЙНУЮ ипотеку, так и за наличный расчёт.

Дата обновления: 11 февраля 2026