Продажа дома

Воронежская область, Новая Усмань село, микрорайон Соловьиный

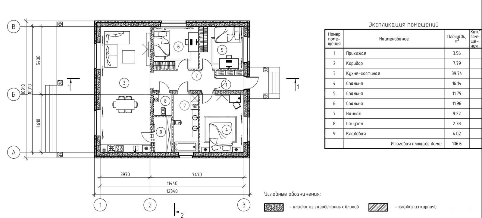
102 м²
Площадь
40.00 м²
Жилая площадь
40.00 м²
Площадь кухни
1
Этажность
7 сот
Площадь участка

7 700 000 ₽

75 491 ₽ за м²

ID объявления 11903191

Поделиться

Добавить в избранное

ЦЕНА В ОБЪЯВЛЕНИИ ПРИ ПОКУПКЕ ПОД СЕМЕЙНУЮ ИПОТЕКУ!




В продаже дом полноценных 100 м.кв. в активно развивающимся микрорайоне Соловьиный!

Фундамент с плитой залит в конце 2024 года и только сейчас начинается возведение самого дома.

По проекту сам дом с 3 спальными комнатами, 40 метровой кухней-гостиной с выходом на террасу;

Продажа в предчистовой отделке (ПОЛУСУХАЯ СТЯЖКА ПОЛА, ШТУКАТУРЕНЫЕ СТЕНЫ, ЭЛЕКТРИКА, ОТОПЛЕНИЕ);

Участок ровный и удачно расположен так, что за вами соседи будут далеко!!!!

Все коммуникации заведены (СВЕТ, ГАЗ, ВОДА, СЕПТИК);

Подъезд до самого участка АСФАЛЬТ не в каждом районе такое есть, ни смотря на то что район только застраивается.




В самом районе совсем скоро планируется строительство школы и детского сада + в центре микрорайона будет парк отдыха + 5 детских площадок.




Звоните прямо сейчас не ждите когда ваш дом купят другие!

Дата обновления: 14 августа 2025