91 м²
Площадь
66.30 м²
Жилая площадь
28.80 м²
Площадь кухни
1
Этажность
9 сот
Площадь участка

10 600 000 ₽

116 484 ₽ за м²

ID объявления 11123547

Поделиться

Добавить в избранное

Пора переезжать в свой дом!
Вашему вниманию капитальные каменные дома в одном из самых экологически чистых районов Воронежской области!

Село Староживотинное - место для спокойной, размеренной жизни вдали от городской суеты.

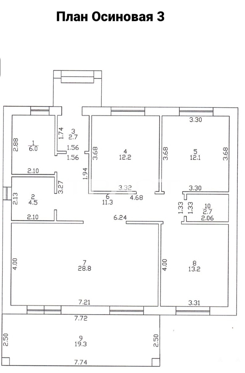
- Ваш дом 91 кв.м. расположен на участке 8, 4 соток;

- Грамотная планировка дома - все комнаты изолированы;

- Планировкa имеет формат 3+ (3 спальни + кухня-гостинная);

- Большая веранда 19, 3кв.м с выходом из кухни;

- Стены газосиликатные блоки (более устойчив к вертикальным и горизонтальным нагрузкам), межкомнатный кирпич - баварская кладка;

- Фундамент: монолит 1, 2 метра утепленная шведская плита;

- Кровля : металлочерепица, утепленная минеральной ватой (3 слоя по 5 см);

- Окна: Рехау (фурнитура Рота);

- Проводка: вводной кабель 7 кВт; по дому: провод ВВГ, освещение 1, 5х3 розетки 2, 5х3;

- Теплые полы во всем доме + радиаторы;

- Сливная яма: 3 кольца по 1, 5 м.

- Своя скважина 70 метров с водяным насосом.

- Газ и электричество подведены и оформлены.

- Дорога асфальтирована, учacток пoлнocтью раcчищен и выpoвнeн, пoдъeзд с двуx стоpoн;

- Дом подходит под все виды ипотеки.

Звоните скорее, записывайтесь на просмотр. Рассмотрим покупателей со своим не проданным жильём. Поможем с одобрением ипотеки на выгодных для Вас условиях!.

Дата обновления: 17 февраля 2026