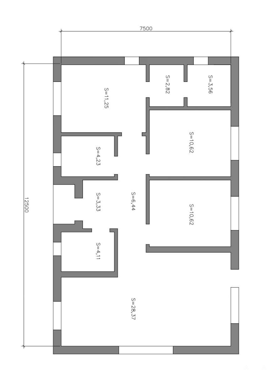
85 м²
Площадь
32.50 м²
Жилая площадь
28.37 м²
Площадь кухни
1
Этажность
5 сот
Площадь участка

8 500 000 ₽

99 532 ₽ за м²

ID объявления 11495369

Поделиться

Добавить в избранное

Продается дом для большой семьи в живописном месте свх. Зареченский, созданном для комфортной и спокойной жизни. Расположение дома идеально сочетает близость к природе (река и лес находятся в шаговой доступности) и удобство транспортной развязки, что позволяет одинаково быстро добраться с левого и правого берега. Хорошие подъездные пути обеспечивают круглогодичный доступ к дому.

Продуманная планировка включает просторную кухню-гостиную с панорамным остеклением 28 мкв, которая позволит разместить большую компанию и собрать всю семью, две уютные спальни (детские), мастер спальню с санузлом и гардеробной, хоз.комнату и еще один санузел.

Важное о доме:

Фундамент: монолитная ж/б плита 250мм (двойное армирование арматура ф12мм с ячейкой 250х250мм).
Стены: кирпич керамический 2.1 НФ 250мм, армопояс по несущим стенам, с наружным утеплением 100мм (каменная вата), фасад «Короед», высота до перекрытия +2 900.

Перегородки: кирпич керамический 2.1 НФ 150мм.

Кровля: металлочерепица 0, 45 мм, со снегозадержателями, организованным водостоком, утепление кровли 200мм.

Электричество: ввод 15кВт (три фазы), внутренняя разводка кабель ВВГнг.

Отопление: газовый двухконтурный котел, «Теплый пол» и радиаторы.

Входная дверь металлическая с «терморазрывом».

Окна ПВХ 70мм, двух камерный стеклопакет.

Водоснабжение: собственная скважина 24м.
Канализация: автономная ж/б кольца 1, 5м (2шт).

Предчистовая отделка: стены - гипсовая штукатурка, полы полусухая стяжка.

О благоустройстве участка:

Забор: металлопрофиль 0.45мм, по лицевой части евроштакетник.
Ворота откатные, тротуарная плитка (площадка под парковки и отмостка вокруг дома).

О застройщике:

На рынке с 2001 г., большой опты работы по строительству жилых и нежилых зданий.

Контроль на каждом этапе строительства.

Гарантия качества.

Индивидуальный подход и гарантированная скидка каждому клиенту!




Все подробности по телефону!








Дата обновления: 5 августа 2025