Продажа дома

Воронежская область, Новая Усмань село, улица Олимпийцев, 19

175 м²
Площадь
45.00 м²
Жилая площадь
40.00 м²
Площадь кухни
1
Этажность
7 сот
Площадь участка

16 500 000 ₽

94 071 ₽ за м²

ID объявления 12405345

Поделиться

Добавить в избранное

Дом строили для себя из дорогих качественных материалов!

Продается шикарный коттедж в престижном микрорайоне Новой Усмани "Развитие".


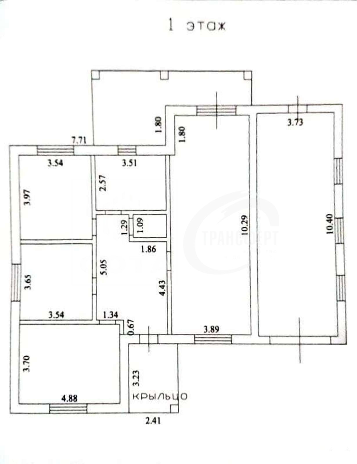
Замечательная планировка: просторная кухня-гостиная 40 кв.м с выходом на террасу, 3 светлые изолированные комнаты 13, 14 и 18 кв.м, раздельный санузел, широкий холл, терраса и крыльцо. Так же в общую площадь входит гараж на 2 машины с автоматическими воротами.


Дом из газосиликата 300 мм, утеплен пенопластом 50 мм и облицован керамическим кирпичом. Кровля - гибкая черепица. Фундамент ленточный, глубина 1, 4 м с единой монолитной плитой. Есть черновая стяжка и армопояс. Качественные окна с двухкамерными стеклопакетами. Подключены все коммуникации: электричество, индивидуальная скважина с погружным насосом и гидроаккумулятором на 80 л, сливная яма 3 кольца, газовое отопление с двухконтурным настенным котлом Ferroli на 240 кв.м, радиаторами и системой водяных теплых полов.


Дом полностью в жилом состоянии: натяжные потолки, установлены межкомнатные двери, на полу в общих помещениях керамогранит, в спальнях - ламинат, санузлы в дорогой качественной плитке. В ванной комнате установлена угловая ванная и душевая.

Участок 6, 5 соток, угловой, полностью огорожен металлопрофилем, ворота автоматические! Двор выложен плиткой. Посажены плодовые деревья: яблоня, вишня, персик и другие. Перед двором разбита клумба. Подъездные пути хорошие.

Вид из окон на Богородицкую церковь. В шаговой доступности остановка общественного транспорта, магазин и детский сад.


Дом находится в активно развивающемся населенном пункте: несколько школ, детские сады, торговые центры, новая больница, различные магазины и прочая инфраструктура. А также неоспоримым преимуществом является близость к городу Воронеж.


Полное юридическое сопровождение сделки. Один взрослый собственник, без ограничений и обременений. Возможны любые виды оплаты, в том числе ипотека. Оформляем ипотеку на выгодных условиях. Работаем с ЛЮБЫМИ жилищными сертификатами. Помогаем реализовать не проданное жилье покупателя.


По техническим причинам Вы можете не дозвониться с первого раза. Перезвоните, пожалуйста, или напишите в чат. Мы на связи 24/7 и ждем Вашего звонка.

Дата обновления: 22 января 2026

Дом/Коттедж/Таунхаус/Дуплекс От собственника Ипотека