Продажа 1-комнатной квартиры
- 39 м²
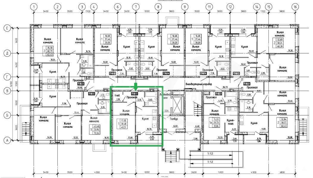
- Площадь
- 17.00 м²
- Жилая площадь
- 10.80 м²
- Площадь кухни
- 1/8
- Этаж
4 290 000 ₽
108 884 ₽ за м²
ID объявления 11524886
Поделиться
Добавить в избранное
Продам однокомнатную квартиру на первом этаже в восьмиэтажной позиции в ЖК "Галактика 2/3". Квартира без отделки, сделана стяжка пола, установлены радиаторы, счётчики на горячую и холодную воду, электросчётчик. ДОМ СДАН. ПОСМОТРЕТЬ МОЖНО В УДОБНОЕ ВАМ ВРЕМЯ.
Квартира просторная и светлая. Окна ПВХ, красивый вид. При входе в квартиру вместительная прихожая - 5, 10 кв.м и гардеробная/кладовка. Комната, общей площадью 17 кв.м. Кухня - 10, 76 кв.м., подходит электрическая плита или варочная поверхность; выход на лоджию. Совмещенная ванная комната с санузлом - 3, 63 кв.м. Дом одноподъездный. Комфортный этаж. Квартира продаётся без отделки, поэтому можно воплотить любой дизайн по Вашему вкусу.
Дом построен по монолитно-кирпичной технологии с современными фасадами, отделанными облицовочным кирпичом. Автономное отопление - это разумные коммунальные расходы, наземный паркинг. Двор с детской площадкой, обустроенная придомовая территория. ЖК "Галактика" - это современный квартал нового поколения, построенный по авторскому проекту.
Жилой комплекс представляет собой сердце молодого района, в котором активно строятся объекты инфраструктуры. Рядом уже работает множество магазинов, салонов красоты, фитнес-центров. В пешей доступности находятся частные и муниципальные дошкольные учреждения, школы. Комплекс граничит с ЖК "Композитор", ЖК "Донские просторы", ЖК "Каштановый" и с микрорайоном Северный. Экологически чистый район.
Рады видеть Вас на просмотре квартиры. Оказываем услуги по оформлению ипотеки. Звоните.
Дата обновления: 3 июня 2025