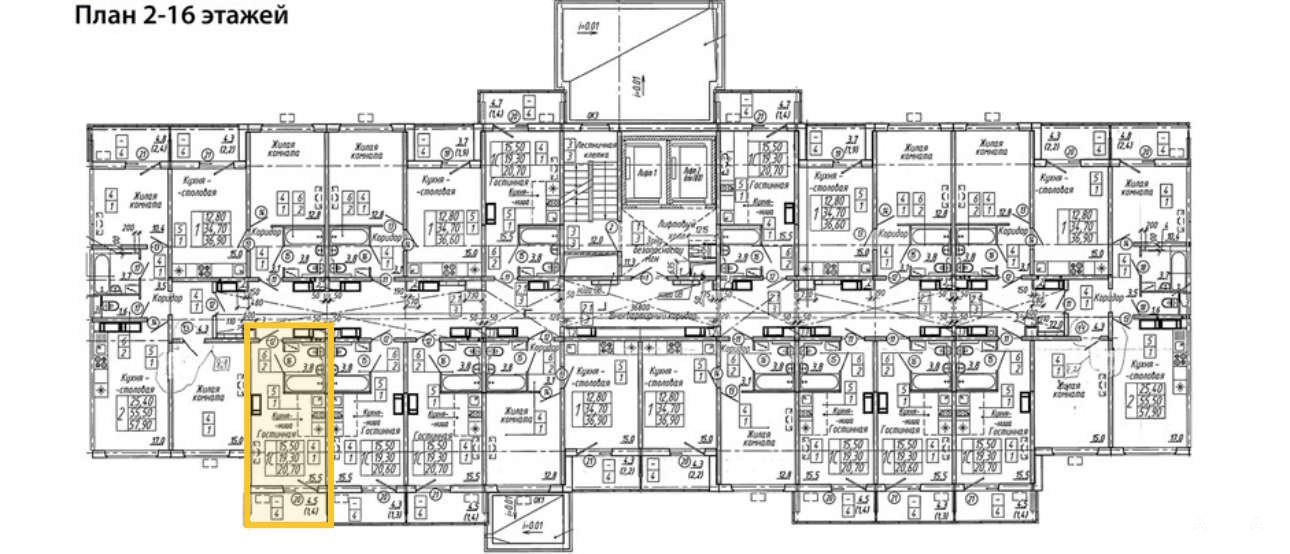
- 21 м²
- Площадь
- 13.50 м²
- Жилая площадь
- 9/17
- Этаж
3 787 000 ₽
182 947 ₽ за м²
ID объявления 12226844
Поделиться
Добавить в избранное
Городские истории» – это уютный жилой комплекс недалеко от центра.
Все квартиры сдаются со 100% качественной отделкой «под ключ».
Удачная локация ЖК «Городские истории» обеспечивает жителям удобный доступ к развитой инфраструктуре центра Воронежа.
Рядом расположены школы, детские сады, объекты дополнительного образования и спортивной индустрии, медицинские учреждения, торговые и бизнес-центры.
Здесь есть уютные студии, площадью от 20, 5 до 21, 3 кв. м, однокомнатные квартиры от 36, 5 до 36, 8 кв. м, а также двухкомнатные квартиры от 56, 9 до 57, 9 кв. м.
Дата обновления: 15 ноября 2025