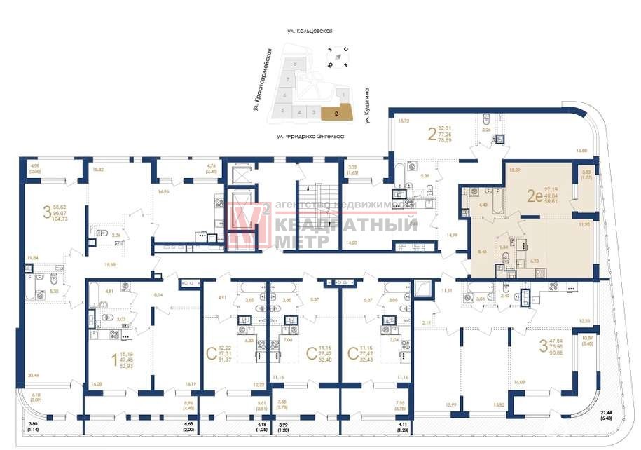
Продажа 2х-комнатной квартиры
- 51 м²
- Площадь
- 27.19 м²
- Жилая площадь
- 6.93 м²
- Площадь кухни
- 2/7
- Этаж
13 983 543 ₽
276 300 ₽ за м²
ID объявления 12226791
Поделиться
Добавить в избранное
Двухкомнатная квартира с терассой
«Дом на Фридриха Энгельса» – престижная локация с исключительной инфраструктурой. Особая атмосфера исторического центра
Подходит под ЛЮБЫЕ способы оплаты и СЕМЕЙНУЮ ИПОТЕКУ. БЕЗ КОМИССИИ для покупателя
В жилом доме предусмотрено 8 секций, 309 эксклюзивных квартир по технологии монолитного домостроения
Переменная этажность: 6 – 17
Площадь квартир: от 29, 89 до 127, 29 кв. м
Площадь террас: от 2, 24 до 99, 34 кв. м
Высота потолков в квартирах: 3, 1 м
Свободные планировки, евроформат
Эксклюзивные решения (мастер-спальня с собственным выходом на террасу, ванная комната с видом на город)
Авторская архитектура
Концептуальное благоустройство, архитектурная подсветка
Премиальное лобби
Дизайнерские бесшумные лифты Meteor
Закрытая охраняемая территория
Высокий уровень безопасности, сервиса и приватности
Подземный 2-х уровневый паркинг (270 машино-мест)
Электрические зарядки для автомобилей
Кладовые
Ритейл на 1 этажах
Трейд-ин
Звоните !
Дата обновления: 23 ноября 2025