Продажа 3х-комнатной квартиры
- 69 м²
- Площадь
- 39.50 м²
- Жилая площадь
- 10.90 м²
- Площадь кухни
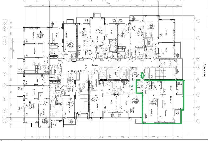
- 3/18
- Этаж
6 940 000 ₽
101 167 ₽ за м²
ID объявления 11524891
Поделиться
Добавить в избранное
Продам трёхкомнатную квартиру на третьем этаже в ЖК "Галактика 2/3". Квартира без отделки, сделана стяжка пола, установлены радиаторы, счётчики на горячую и холодную воду, электросчётчик. ДОМ СДАН. ПОСМОТРЕТЬ МОЖНО В УДОБНОЕ ВАМ ВРЕМЯ.
Квартира просторная и светлая. Окна ПВХ, красивый вид. При входе в квартиру вместительная прихожая - 11, 94 кв.м и гардеробная. Три комнаты площадью: 17, 45 кв.м - спальня, вторая спальня - 10, 23 кв.м с выходом на лоджию, гостиная - 11, 82 кв.м. Кухня - 10, 85 кв.м., подходит электрическая плита или варочная поверхность; выход на лоджию. Раздельные ванная комната и санузел. Дом одноподъездный. Комфортный этаж. Квартира продаётся без отделки, поэтому можно воплотить любой дизайн по Вашему вкусу.
Дом построен по монолитно-кирпичной технологии с современными фасадами, отделанными облицовочным кирпичом. Автономное отопление - это разумные коммунальные расходы, наземный паркинг. Двор с детской площадкой, обустроенная придомовая территория. ЖК "Галактика" - это современный квартал нового поколения, построенный по авторскому проекту.
Жилой комплекс представляет собой сердце молодого района, в котором активно строятся объекты инфраструктуры. Рядом уже работает множество магазинов, салонов красоты, фитнес-центров. В пешей доступности находятся частные и муниципальные дошкольные учреждения, школы. Комплекс граничит с ЖК "Композитор", ЖК "Донские просторы", ЖК "Каштановый" и с микрорайоном Северный. Экологически чистый район.
Рады видеть Вас на просмотре квартиры. Оказываем услуги по оформлению ипотеки. Звоните.
Дата обновления: 19 июня 2025